Design and Build Contractor in New England
Custom House Plans • Home Design and Planning • Full Design-Build Services
Whether you're building an addition, transforming your layout, or creating a completely custom home, our team provides a streamlined design and build experience from concept to completion. As a trusted design and build contractor, we combine expert planning, architectural coordination, and craftsmanship to deliver beautiful, functional living spaces built around your lifestyle.
From early sketches to final construction, we manage the full process so instead of juggling multiple professionals, you have one organized, accountable team moving your project forward.
Design and Construction Services
Comprehensive Design-Build Solutions
Our design-build process eliminates delays, miscommunication, and costly mistakes. You get one team that handles everything: planning, coordination, materials, scheduling, and construction. This ensures your home is designed efficiently and built exactly as intended.
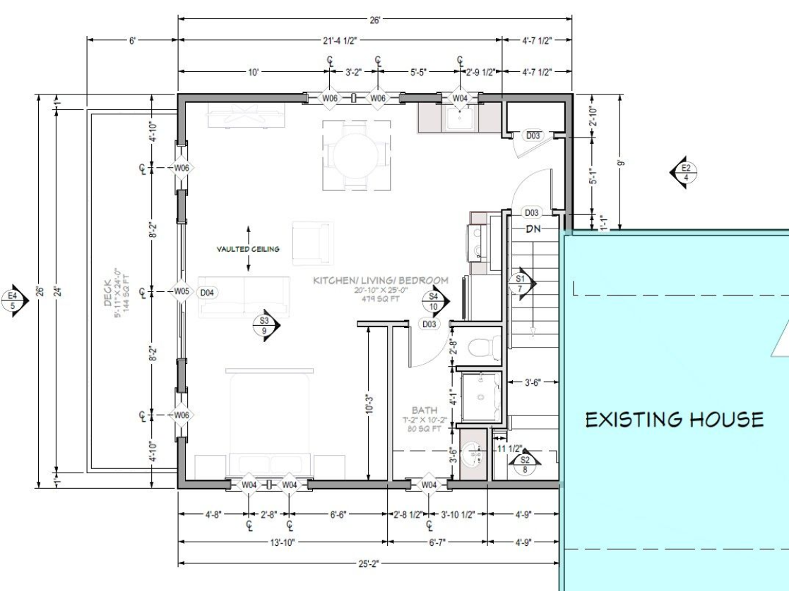
Custom House Plans
Every home and every family is unique. We create custom floor plans tailored to your needs — whether you're building an addition, reworking your existing space, or designing an entirely new layout. We work directly with licensed architects and structural engineers to bring your ideas to life with precision and creativity.
Home Design and Planning
Great construction begins with great planning. We help you explore layouts, design options, structural paths, utility considerations, materials, and functional flow. Through 3D drawings (when available) and detailed planning sessions, you’ll get clear visuals and realistic expectations before construction begins.
New England Design and Construction Expertise
Our team understands how New England homes are built from older colonials and capes to multi-level homes and modern expansions. We ensure your design aligns with local building codes, seasonal climate demands, and structural best practices.
Our Design-Build Process
Why Homeowners Choose Our Design and Build Team
As a veteran-owned, family-run contractor, we combine integrity, craftsmanship, and service to ensure every homeowner receives the highest level of care. Homeowners choose us because we offer:
One Contractor • One Process • One Vision
By combining design and construction under one team, you eliminate confusion and increase efficiency.
Veteran-Owned Professionalism
We operate with integrity, accountability, and a commitment to serving our customers and community.
Custom Solutions, Not Cookie-Cutter Plans
Every project is designed around your lifestyle, your home, and your long-term vision.
New England Experience
Our understanding of older homes, seasonal climate patterns, insulation needs, and structural requirements ensures long-lasting results.
Frequently Asked Questions About Construction Design and Build
What exactly does a design and build contractor do?
A design and build contractor manages both the planning and construction of your project. Instead of hiring an architect, engineer, and builder separately, you work with one coordinated team.
Do you provide the architectural drawings or do I need to hire an architect?
We work directly with licensed architects and can manage the entire design process for you. You do not need to hire anyone separately.
Can you help me create custom house plans?
Yes we specialize in custom plan development through architectural coordination and detailed planning sessions.
Are design-build services more efficient than traditional construction?
Yes. Design-build reduces miscommunication, speeds up permitting, aligns expectations, and ensures the final build matches the approved plans.
Can I use your design services even if I’m not ready to build yet?
Absolutely. Many homeowners begin with planning and design first. We save your plans and can build whenever you're ready.
Do you help with zoning, permitting, or engineering requirements?
Yes. We handle all New England municipal permitting, structural engineering, zoning reviews, and required approvals.
Start Your Design-Build Project Today
If you're ready to explore a redesign, addition, or custom layout, our team is here to help. As a trusted design and build contractor, we offer full-service support from the earliest planning stages through final construction.
Service Area
Maine
York County
Massachusetts
Essex County
Middlesex County
Worcester County
New Hampshire
Hillsborough County
Merrimack County
Rockingham County
Strafford County





